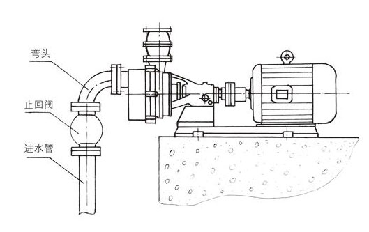
自吸泵按照介質可以分為高粘度自吸泵和高吸程自吸泵以及清水自吸泵。自吸泵止回閥安裝在自吸水泵出口端自吸泵止回閥的主要作用是可以防止自吸離心泵突然停機時發生的水錘現象損壞泵體。也能有效防止泵內存水的流失。水的流失會引發自吸力不足,水流量太低容易出現抽空現象。自吸泵空轉容易燒毀機封。推薦閱讀:水泵可以空轉嗎?

一、自吸泵止回閥安裝
1.止回閥先安裝蝶閥或者閘閥后安裝
優點是可以保護止回閥,在2臺以上并聯泵出現時,有1臺不能啟動,需要關閉出口閥門,備用泵啟動時,會造成蝶閥或者閘閥的沖擊力,止回閥出現故障后,能關閉出口和進口隔離系統進行維修。
缺點是蝶閥或者閘閥沒有保護裝置,蝶閥的閥板被打壞了。
2.蝶閥或者閘閥先安裝止回閥后安裝
優點是能保護蝶閥或者閘閥,止回閥承擔沖擊力。
缺點是止回閥沒有保護,止回閥是利用壓力差來進行開關。總管壓力高時會關閉,高效節能自吸泵壓力高就開,使用流量忽高忽低,止回閥會出現反復開關,影響使用壽命。需要停止系統后進行維修。
二、自吸泵止回閥作用
不銹鋼自吸泵的止回閥也被稱為逆水閥。其作用是允許介質朝一個方向運動。
自吸泵止回閥安裝與作用由水泵廠家總結。


IH(IS) 不銹鋼化工離心泵
IHF系列氟塑料襯里離心泵
FSB型氟塑料合金離心泵
